物件情報
- 所在地
- 大阪府摂津市鳥飼本町2-8-27
- 空き状況
- 空
- アクセス
- ■近畿自動車道「摂津北」IC 3.0km ■大阪モノレール本線「摂津」駅 徒歩25分
- 賃貸/寄託
- 賃貸
- 賃料(月額)
- 1,210,000円
- 敷金/保証金
- 3ヶ月
- 礼金
- 1ヶ月
- 使用開始日
- ご相談
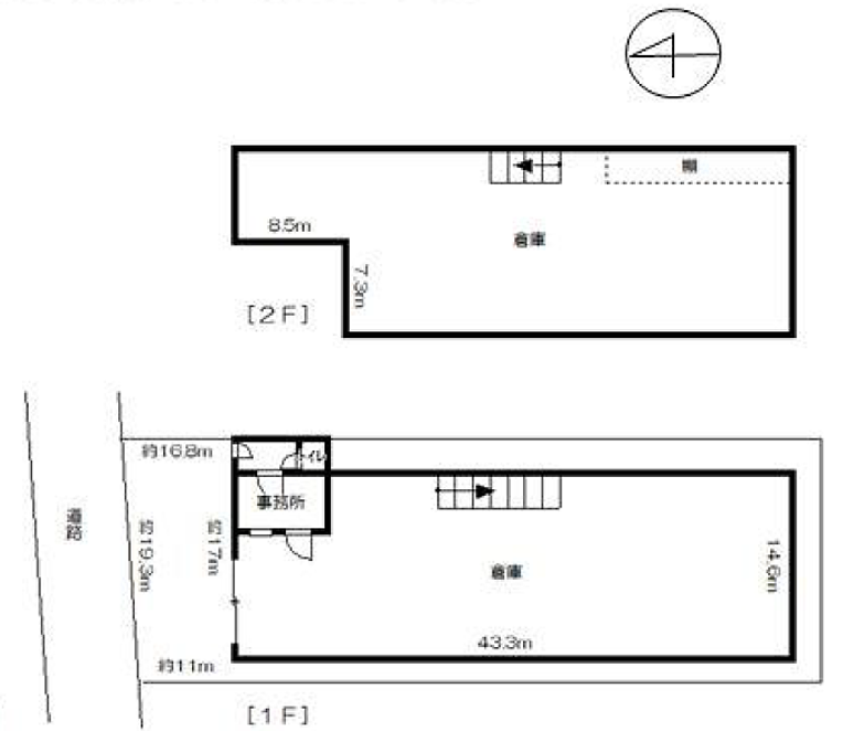
- 契約面積
- 364坪
- 敷地面積
- 297坪
- 竣工
- 1971年
- 構造
- 軽量鉄骨造
- 用途地域
- 準工業地域
- 階層
- 2階
- 駐車場
- 有
- 設備
- ■2tクレーンあり(残置物)
- 備考
- ■賃貸保証契約、火災保険 加入要
お電話でのお問い合わせも可能です。
お電話の際は、ページ上部にある記載の物件番号をお伝えいただくとスムーズです。