貸し倉庫検索サイト

LOGI PICK by 株式会社ASSORT

大阪府大阪市平野区長吉川辺3丁目|貸し倉庫

物件番号:3359

物件情報

所在地
大阪府大阪市平野区長吉川辺3丁目14‐5
アクセス
■近畿自動車道 「長原」IC 1.1km ■大阪メトロ谷町線「八尾南」駅 徒歩11分
賃貸/寄託
賃貸
賃料(月額)
3,987,000円
敷金/保証金
6ヶ月
使用開始日
2026年5月上旬予定
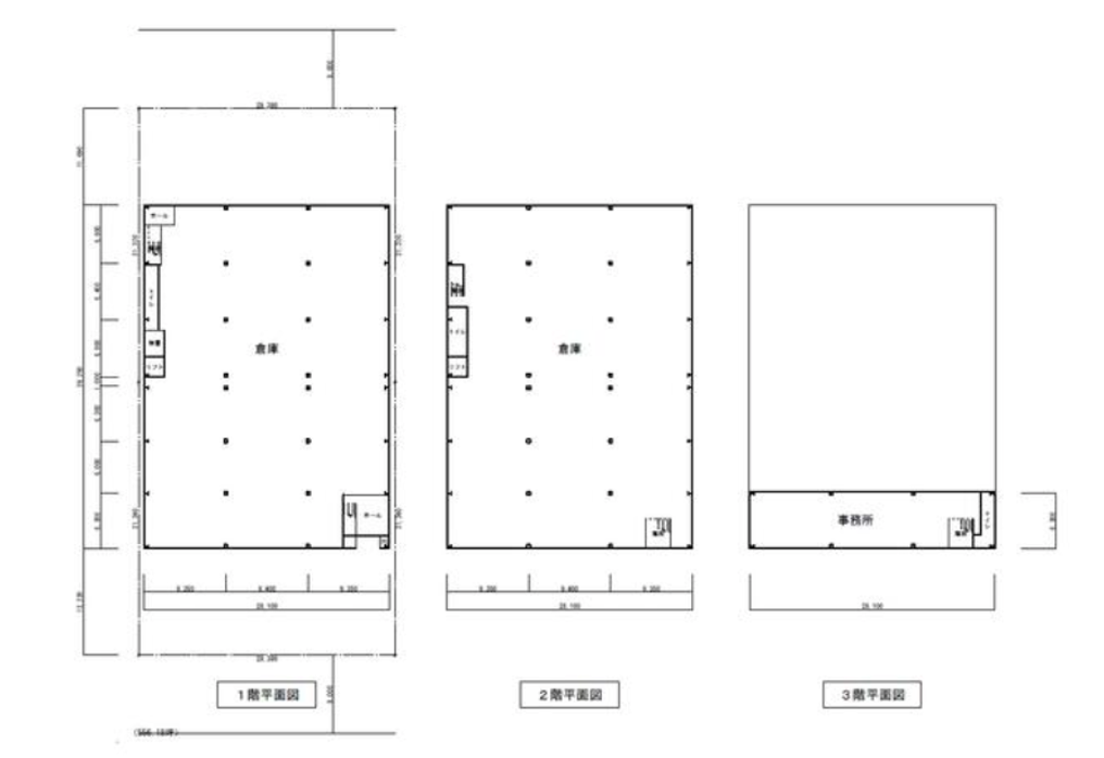
契約面積
724坪
竣工
1992年
用途地域
第一種住居地域
階層
3階

お電話でのお問い合わせも可能です。

お電話の際は、ページ上部にある記載の物件番号をお伝えいただくとスムーズです。

LOGI PICK LOGO
copyright © 2023 LOGI PICK All Right Reserved.