貸し倉庫検索サイト

LOGI PICK by 株式会社ASSORT

千葉県柏市柏1356|貸し倉庫

物件番号:3356

物件情報

所在地
千葉県柏市柏1356-5
空き状況
アクセス
■常磐自動車道「柏IC」7.57㎞ ■JR常磐線「柏」バス8分「弥生町」停歩1分
賃貸/寄託
賃貸
賃料(月額)
1,650,000円
契約形態
普通賃貸借
敷金/保証金
10ヶ月
礼金
1ヶ月
使用開始日
即日
契約面積
248坪
竣工
2006年
構造
S造
用途地域
準住居
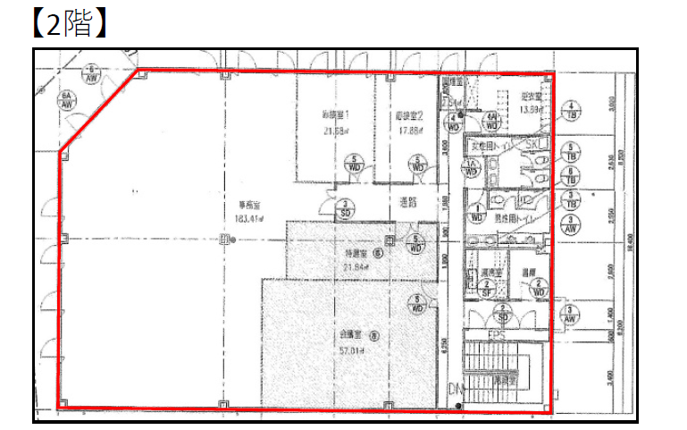
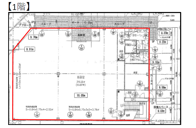
階層
2階
区画
1階-2階
駐車場
設備
■1階スケルトン/2階事務所仕様 ■検査済証あり ■駐車場21台
備考
■償却:解約時1ヶ月 ■契約期間:5年 ■指定保証会社加入必須

お電話でのお問い合わせも可能です。

お電話の際は、ページ上部にある記載の物件番号をお伝えいただくとスムーズです。

LOGI PICK LOGO
copyright © 2023 LOGI PICK All Right Reserved.