貸し倉庫検索サイト

LOGI PICK by 株式会社ASSORT

大阪府大阪市東成区深江北1丁目|貸し倉庫

物件番号:3319

物件情報

所在地
大阪府大阪市東成区深江北1-6-20
空き状況
アクセス
■阪神高速13号東大阪線「高井田」IC 1.2km ■大阪メトロ中央線「深江橋」駅 徒歩5分
賃貸/寄託
賃貸
賃料(月額)
2,420,000円
敷金/保証金
6ヶ月
礼金
2ヶ月
使用開始日
ご相談
契約面積
398坪
敷地面積
222坪
構造
鉄骨造亜鉛メッキ鋼板葺造
用途地域
工業地域
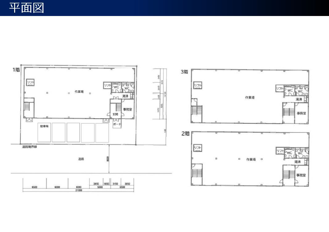
階層
3階
駐車場
設備
■1階天井高:4.9m ■荷物リフト:2ヶ所(積載荷重750kg、240kg) ■駐車場あり(5台~7台可) ■各階トイレ、エアコンあり
備考
■保証会社加入要

お電話でのお問い合わせも可能です。

お電話の際は、ページ上部にある記載の物件番号をお伝えいただくとスムーズです。

LOGI PICK LOGO
copyright © 2023 LOGI PICK All Right Reserved.