貸し倉庫検索サイト

LOGI PICK by 株式会社ASSORT

千葉県市川市本行徳2554|貸し倉庫(一棟貸し)

物件番号:3261

物件情報

所在地
千葉県市川市本行徳2554-55
空き状況
アクセス
■首都高速「千鳥町IC」3分 ■東京外環自動車道「市川南IC」10分 ■JR京葉線「市川塩浜」徒歩28分
賃貸/寄託
賃貸
賃料(月額)
2,640,000円
敷金/保証金
10ヶ月
礼金
2ヶ月
使用開始日
即時
契約面積
719坪
敷地面積
400坪
床式
低床式
竣工
1983年
構造
S造
用途地域
工業専用地域
階層
3階
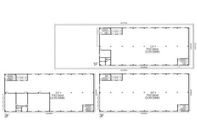
区画
1階-3階
駐車場
設備
■1-3階各239.58坪、1棟貸し ■トイレ2ヶ所 ■電動シャッター ■火災警報器(報知機) ■前面道路約10m ■駐車場:商用車約10台前後
備考
■償却:解約時1ヶ月 ■契約期間:3年(更新可)

お電話でのお問い合わせも可能です。

お電話の際は、ページ上部にある記載の物件番号をお伝えいただくとスムーズです。

LOGI PICK LOGO
copyright © 2023 LOGI PICK All Right Reserved.