貸し倉庫検索サイト

LOGI PICK by 株式会社ASSORT

埼玉県草加市花栗3丁目|貸し倉庫(一棟貸し)

物件番号:3145

物件情報

所在地
埼玉県草加市花栗3丁目21-2
空き状況
アクセス
■東京外環自動車道「草加IC」2.2㎞ ■東武伊勢崎大師線「獨協大学前」徒歩16分
賃貸/寄託
賃貸
賃料(月額)
825,000円
契約形態
普通賃貸借
敷金/保証金
5ヶ月
礼金
1ヶ月
使用開始日
相談
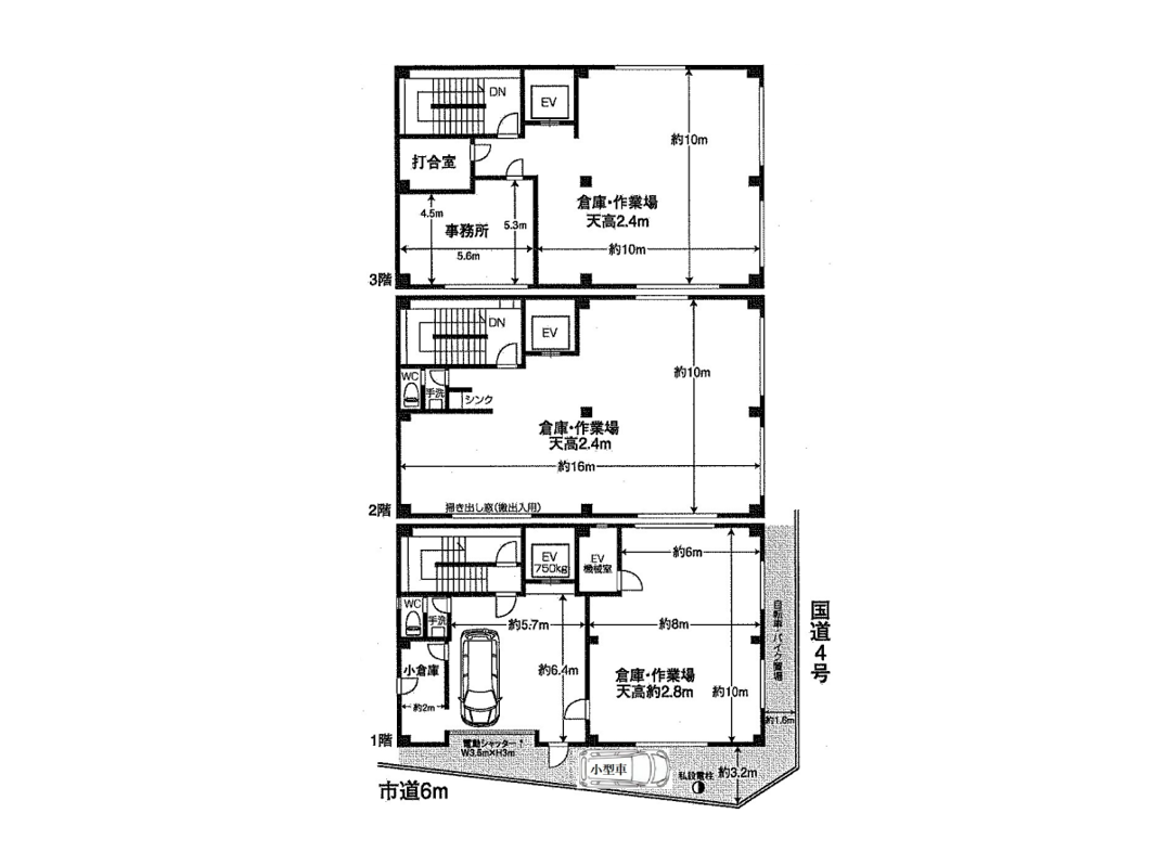
契約面積
147坪
敷地面積
75坪
天井高
2.4~2.8m
竣工
1987年
構造
S造
用途地域
準住居
階層
3階
区画
1階-3階
駐車場
設備
■人荷用EV(750㎏、各階入口H2.1m×W80㎝、カゴ寸法H2.7m×W1.4m×D1.4m) ■事務所 ■トイレ、エアコン ■電動シャッター ■車寄せスペース、荷積みスペース ■24時間利用可、土日・祝日利用可 ■隣地駐車場3台分(8,000円/台)
備考
■償却:解約時1ヶ月 ■契約期間:3年 ■賃貸保証:加入要/日本セーフティ、フォーシーズ ■保険等加入:加入要/借家人賠償責任保険

お電話でのお問い合わせも可能です。

お電話の際は、ページ上部にある記載の物件番号をお伝えいただくとスムーズです。

LOGI PICK LOGO
copyright © 2023 LOGI PICK All Right Reserved.