貸し倉庫検索サイト

LOGI PICK by 株式会社ASSORT

古賀ロジスティクスセンター

物件番号:3082

物件情報

所在地
福岡県古賀市玄望園
アクセス
■九州自動車道「古賀」IC約3.5㎞ ■JR九州鹿児島本線「古賀」駅 約5.5km
賃貸/寄託
賃貸
賃料(月額)
要お問い合わせ
敷金/保証金
要お問い合わせ
礼金
要お問い合わせ
使用開始日
ご相談
契約面積
16,084坪
敷地面積
13,000坪
天井高
5.5m
竣工
2026年
構造
鉄骨造(一部SRC)造
用途地域
準工業地域
階層
2階
駐車場
設備
■荷物用エレベーター:8基(3.5t) ■垂直搬送機:8基(1.5t) ■ドッグレベラー:4基 通過荷重6.0t、積載荷重1.2t
備考
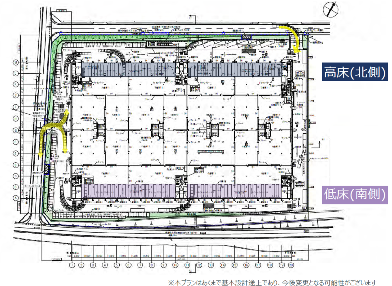
■梁下有効高:倉庫5.5m、事務所3.0m、バース5.5m/6.5m ■床荷重:倉庫1階2.0t/㎡、2階1.5t/㎡、事務所300kg/㎡ ■床形式:北側 高床、南側 低床 ■駐輪場:乗用車120台、バイク10台、トラック待機場13台 ■トラックバース:北側28台、南側32台

お電話でのお問い合わせも可能です。

お電話の際は、ページ上部にある記載の物件番号をお伝えいただくとスムーズです。

LOGI PICK LOGO
copyright © 2023 LOGI PICK All Right Reserved.