貸し倉庫検索サイト

LOGI PICK by 株式会社ASSORT

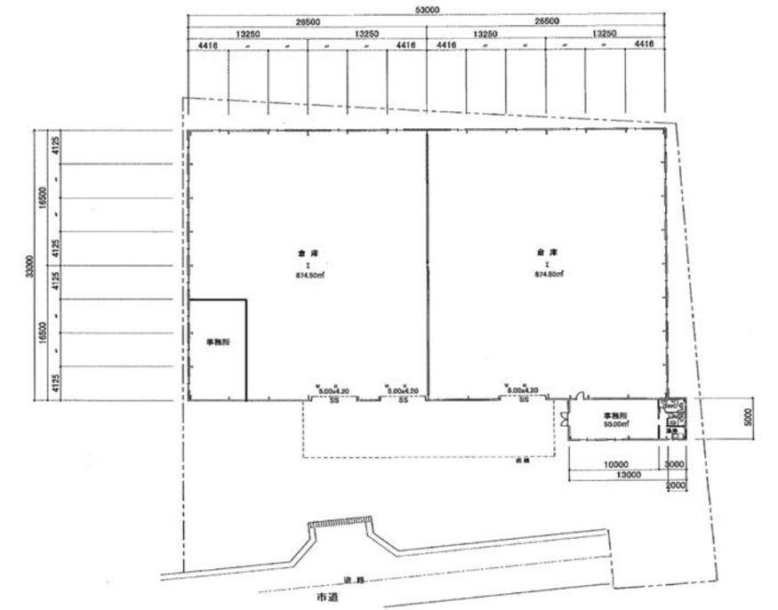
大阪府摂津市東別府4丁目|貸し倉庫

物件番号:3036

物件情報

所在地
大阪府摂津市東別府4-7-27
空き状況
使用中
アクセス
■近畿自動車道「摂津南」IC 2.6km ■大阪モノレール本線「南摂津」駅 徒歩21分
賃貸/寄託
賃貸
賃料(月額)
3,850,000円
敷金/保証金
6ヶ月
礼金
2ヶ月
使用開始日
2026年6月予定
契約面積
549坪
敷地面積
919坪
竣工
1987年
構造
鉄骨造
用途地域
第一種住居地域
階層
1階
駐車場

お電話でのお問い合わせも可能です。

お電話の際は、ページ上部にある記載の物件番号をお伝えいただくとスムーズです。

LOGI PICK LOGO
copyright © 2023 LOGI PICK All Right Reserved.