貸し倉庫検索サイト

LOGI PICK by 株式会社ASSORT

京都府京都市伏見区中島外山町|貸し倉庫

物件番号:3027

物件情報

所在地
京都府京都市伏見区中島外山町30
空き状況
使用中
アクセス
■第二京阪道路油小路線「城南宮南」IC 1.3km ■近鉄京都線「伏見」駅 徒歩20分
賃貸/寄託
賃貸
賃料(月額)
2,530,000円
敷金/保証金
10ヶ月
使用開始日
2026年5月上旬予定
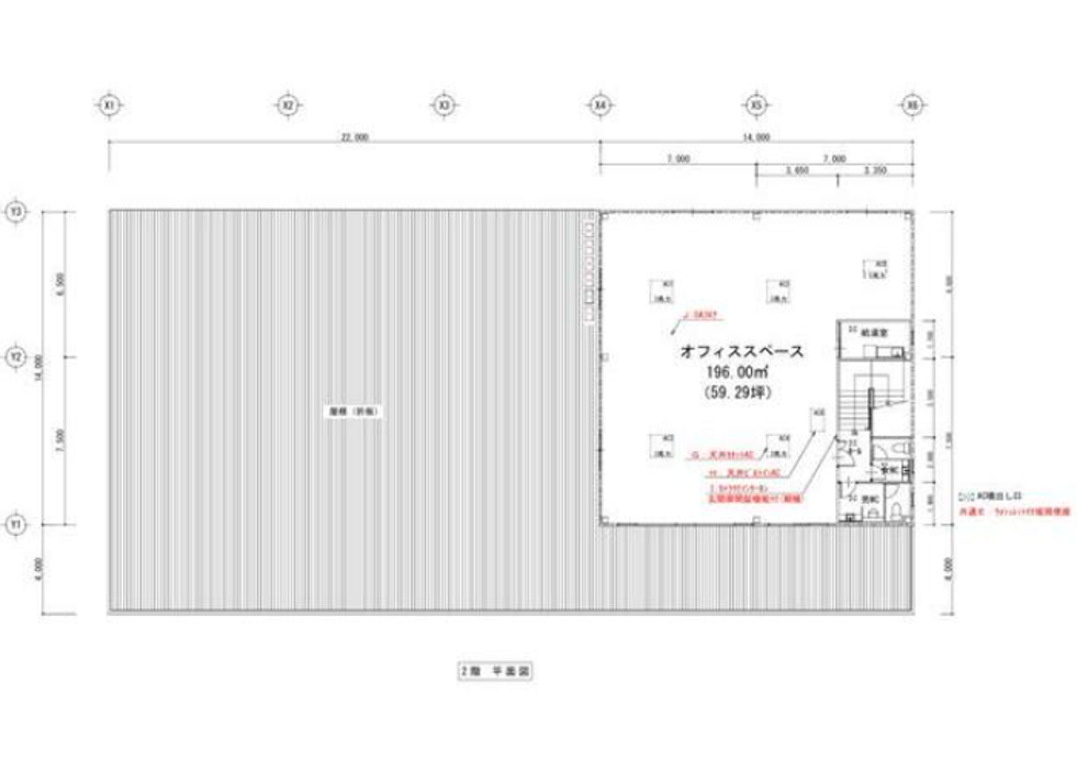
契約面積
212坪
敷地面積
331坪
竣工
2019年
構造
鉄骨造
用途地域
準工業地域
階層
2階
駐車場
設備
■男女別トイレあり ■フォークリフト用電源あり ■電動シャッターあり

お電話でのお問い合わせも可能です。

お電話の際は、ページ上部にある記載の物件番号をお伝えいただくとスムーズです。

LOGI PICK LOGO
copyright © 2023 LOGI PICK All Right Reserved.