貸し倉庫検索サイト

LOGI PICK by 株式会社ASSORT

埼玉県川口市上青木2丁目|貸し倉庫(一棟貸し)

物件番号:3022

物件情報

所在地
埼玉県川口市上青木2丁目46-5
空き状況
アクセス
■東京外環自動車道「川口中央IC」4.15㎞ ■京浜東北線「西川口」バス6分
賃貸/寄託
賃貸
賃料(月額)
814,000円
共益費/管理費(月額)
要お問い合わせ
敷金/保証金
3ヶ月
礼金
1ヶ月
使用開始日
相談
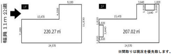
契約面積
129坪
敷地面積
110坪
竣工
2002年
構造
軽量鉄骨造
階層
2階
区画
1階-2階
駐車場
設備
■1階66.63坪/2階62.62坪、1棟貸し ■ベルトコンベヤー ■トラックヤード(4tトラック) ■事務所利用可 ■トイレ ■天井高2.5m以上 ■駐車場2台分 ■土曜日利用可
備考
■保証会社要加入(イエラブパートナーズ) ■保険加入義務有(指定あり) ■その他費用あり ■契約期間:2年

お電話でのお問い合わせも可能です。

お電話の際は、ページ上部にある記載の物件番号をお伝えいただくとスムーズです。

LOGI PICK LOGO
copyright © 2023 LOGI PICK All Right Reserved.