貸し倉庫検索サイト

LOGI PICK by 株式会社ASSORT

東京都江戸川区江戸川6丁目|貸し倉庫

物件番号:2982

物件情報

所在地
東京都江戸川区江戸川6丁目13-2
空き状況
使用中
アクセス
■首都高速中央環状線「船堀橋出入口(IC)」3.15㎞ ■都営新宿線「一之江」徒歩15分
賃貸/寄託
賃貸
賃料(月額)
2,494,800円
契約形態
普通賃貸借
敷金/保証金
6ヶ月
礼金
1ヶ月
使用開始日
2026年2⽉予定
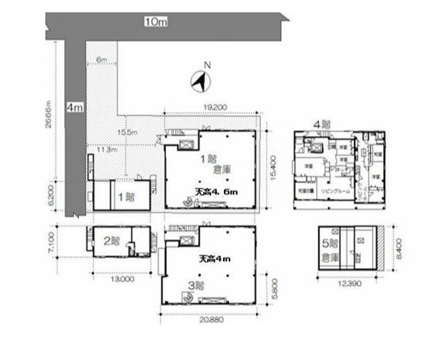
契約面積
359坪
敷地面積
233坪
竣工
1993年
構造
RC造
用途地域
1種中⾼
階層
5階
区画
2棟一括貸し
駐車場
設備
■2階建て:51.31坪/5階建て:307.54坪 ■キュービクル ■リフト ■天井高4m以上 ■動力あり、エアコン、シャッター雨戸 ■大型車進入可能
備考
■契約期間:3年

お電話でのお問い合わせも可能です。

お電話の際は、ページ上部にある記載の物件番号をお伝えいただくとスムーズです。

LOGI PICK LOGO
copyright © 2023 LOGI PICK All Right Reserved.