貸し倉庫検索サイト

LOGI PICK by 株式会社ASSORT

大阪府大阪市西淀川区福町3丁目|貸し倉庫

物件番号:2969

物件情報

所在地
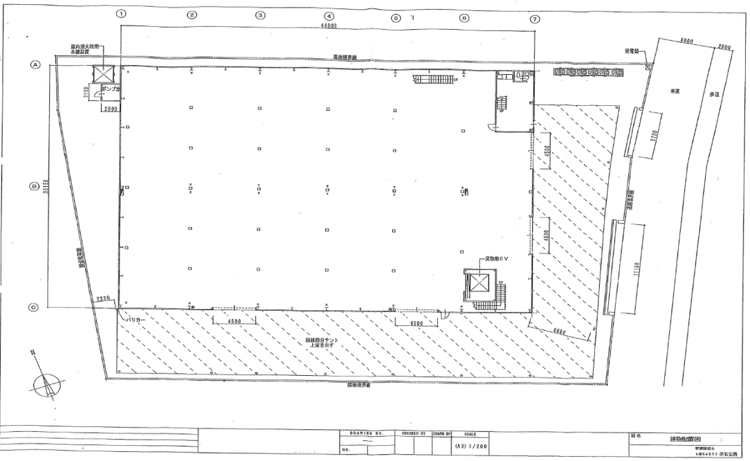
大阪府大阪市西淀川区福町3-4-36
アクセス
■阪神高速3号神戸線「姫島」IC 1.7km ■阪神電鉄なんば線「福」駅 徒歩5分
賃貸/寄託
賃貸
賃料(月額)
3,850,000円
敷金/保証金
6ヶ月
使用開始日
2026年2月予定
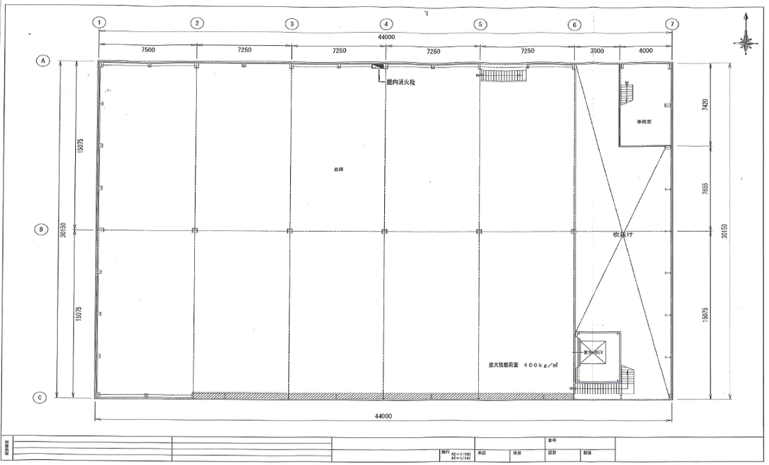
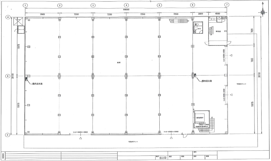
契約面積
743坪
敷地面積
734坪
竣工
1987年
構造
鉄骨造亜鉛メッキ鋼板葺造
用途地域
工業地域
階層
2階
備考
■敷引き:賃料の2ヶ月分

お電話でのお問い合わせも可能です。

お電話の際は、ページ上部にある記載の物件番号をお伝えいただくとスムーズです。

LOGI PICK LOGO
copyright © 2023 LOGI PICK All Right Reserved.