貸し倉庫検索サイト

LOGI PICK by 株式会社ASSORT

(仮称)LOGIFRONT名古屋みなと

物件番号:2959

物件情報

所在地
愛知県名古屋市港区当知2丁目1301
アクセス
■名古屋第二環状自動車道「南陽」IC 約4.0km ■名古屋高速道路「港明」IC 約4.2km ■名古屋臨海高速鉄道あおなみ線「港北」駅 徒歩20分 ■名古屋臨海高速鉄道あおなみ線「荒子川公園」駅 徒歩20分
賃料(月額)
要お問い合わせ
敷金/保証金
要お問い合わせ
礼金
要お問い合わせ
使用開始日
ご相談
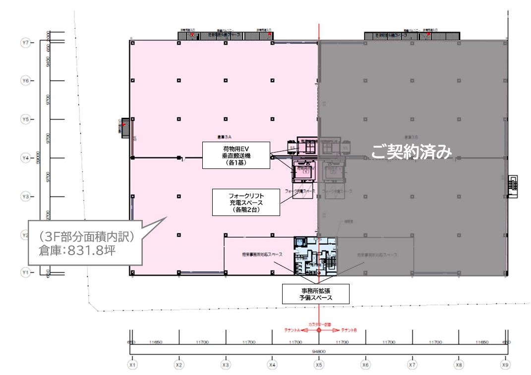
契約面積
6,515坪
敷地面積
3,193坪
床荷量
1.5t/m2
天井高
5.5m
竣工
2025年
構造
鉄骨造
用途地域
準工業地域
階層
4階
駐車場
設備
■荷物用エレベーター(3.5t) 2箇所 ■垂直搬送機(1.5t) 2箇所 ■駐車場 普通車55台

お電話でのお問い合わせも可能です。

お電話の際は、ページ上部にある記載の物件番号をお伝えいただくとスムーズです。

LOGI PICK LOGO
copyright © 2023 LOGI PICK All Right Reserved.