貸し倉庫検索サイト

LOGI PICK by 株式会社ASSORT

埼玉県比企郡吉見町大字田甲307|貸し倉庫

物件番号:2946

物件情報

所在地
埼玉県比企郡吉見町大字田甲307-1
空き状況
アクセス
■関越自動車道「東松山IC」約6.4㎞ ■東武東上線「東松山」4.6㎞
賃貸/寄託
賃貸
賃料(月額)
970,200円
敷金/保証金
2ヶ月
礼金
 1ヶ月
使用開始日
2026年9月予定
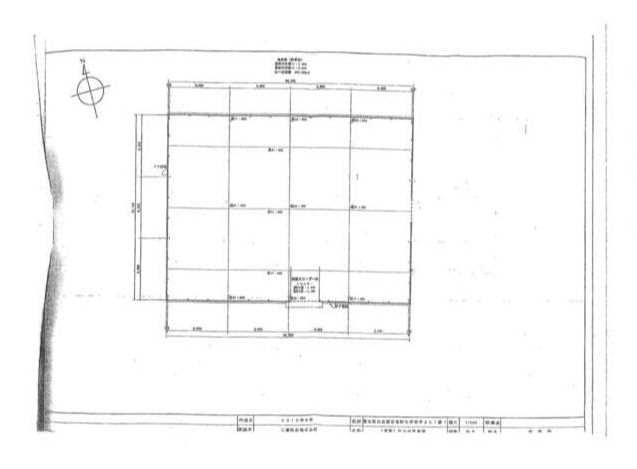
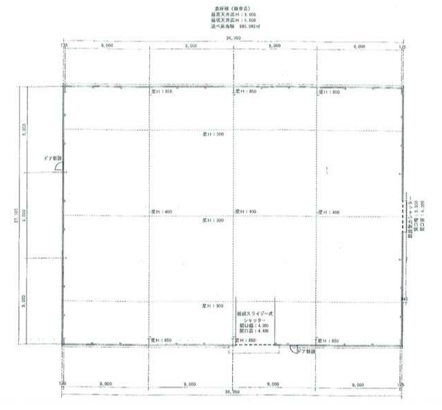
契約面積
294坪
敷地面積
723坪
床式
低床式
天井高
梁下5.5m 棟下8.7m
竣工
1969年
構造
S造
用途地域
無指定
階層
1階
駐車場
設備
■平屋建て ■オーバースライダー(W4.3m×H4.38m) ■大型トラック搬入可
備考
■契約期間:3年 ■賃貸保証:加入要 初回100%、更新10% ■保険等加入:加入要 ■浄化槽維持管理費借主負担

お電話でのお問い合わせも可能です。

お電話の際は、ページ上部にある記載の物件番号をお伝えいただくとスムーズです。

LOGI PICK LOGO
copyright © 2023 LOGI PICK All Right Reserved.