
物件情報
- 所在地
- 大阪府大阪市平野区長吉長原東3-1-28
- 空き状況
- 空
- アクセス
- ■近畿自動車道「長原」IC 1.0km ■大阪メトロ谷町線「長原」駅 徒歩5分
- 賃貸/寄託
- 賃貸
- 賃料(月額)
- 2,200,000円
- 敷金/保証金
- 3ヶ月
- 礼金
- 1ヶ月
- 使用開始日
- 2025年11月上旬予定
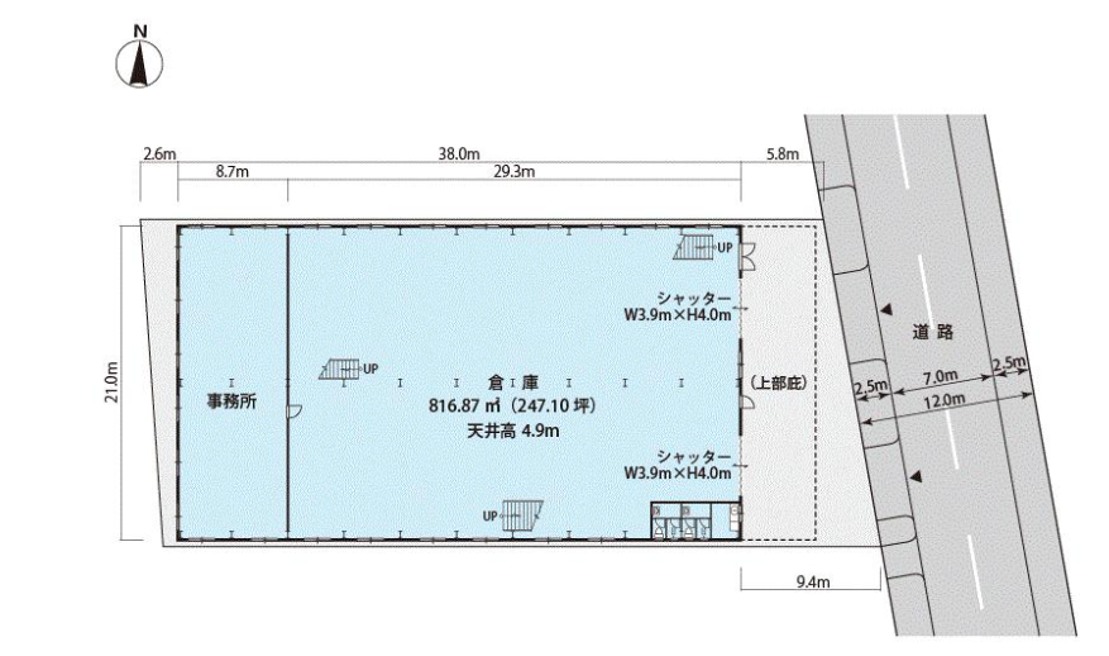
- 契約面積
- 488坪
- 敷地面積
- 318坪
- 竣工
- 1988年
- 構造
- 鉄骨造ストレート葺造
- 用途地域
- 第一種住居地域
- 階層
- 2階
- 駐車場
- 有
- 設備
- ■事務所あり ■トイレあり
お電話でのお問い合わせも可能です。
お電話の際は、ページ上部にある記載の物件番号をお伝えいただくとスムーズです。