
物件情報
- 所在地
- 大阪府大阪市浪速区桜川2-10-11
- 空き状況
- 使用中
- アクセス
- ■阪神高速道路15号堺線「芦原」IC 0.9km ■大阪メトロ千日前線「桜川」駅 徒歩4分
- 賃貸/寄託
- 賃貸
- 賃料(月額)
- 1,210,000円
- 敷金/保証金
- 2ヶ月
- 礼金
- 1ヶ月
- 使用開始日
- ご相談
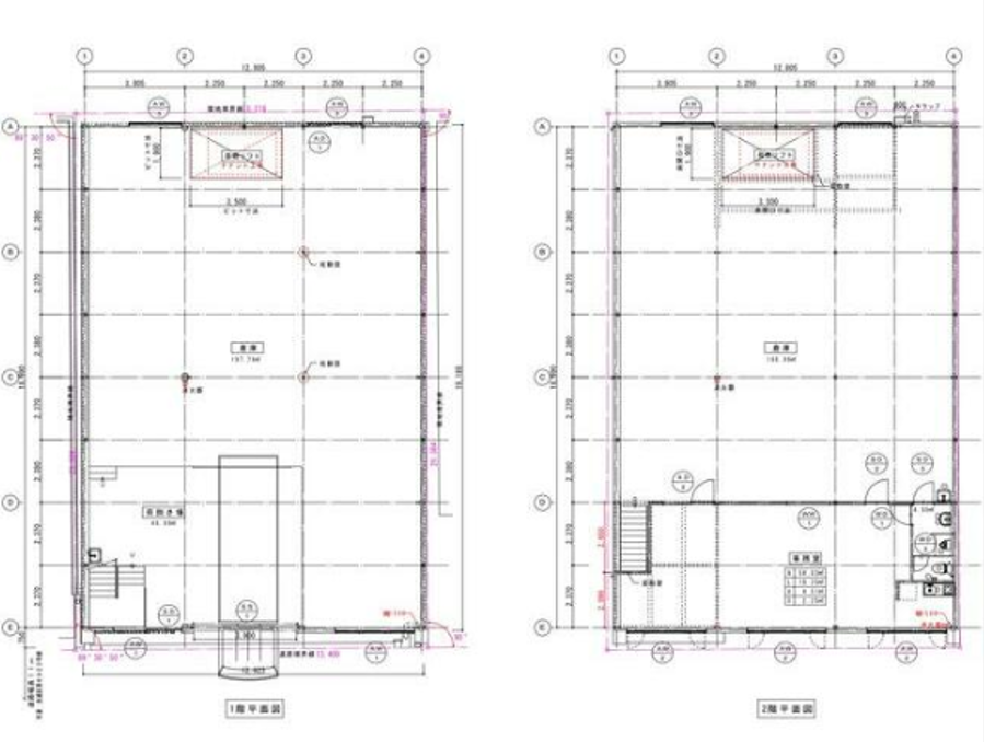
- 契約面積
- 147坪
- 敷地面積
- 82坪
- 竣工
- 1968年
- 構造
- 鉄骨造
- 用途地域
- 準工業地域
- 階層
- 2階
- 設備
- ■トイレあり ■電動シャッターあり ■荷積みスペースあり
お電話でのお問い合わせも可能です。
お電話の際は、ページ上部にある記載の物件番号をお伝えいただくとスムーズです。