
物件情報
- 所在地
- 埼玉県鴻巣市袋922-2
- 空き状況
- 使用中
- アクセス
- ■関越自動車道「東松山IC」14.57㎞ ■高崎線「吹上」徒歩29分
- 賃貸/寄託
- 賃貸
- 賃料(月額)
- 1,232,000円
- 契約形態
- 普通賃貸借
- 敷金/保証金
- 4ヶ月
- 礼金
- 1ヶ月
- 使用開始日
- 2026年2月予定
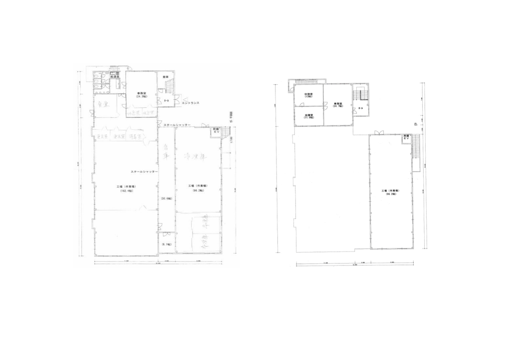
- 契約面積
- 288坪
- 敷地面積
- 318坪
- 竣工
- 1980年
- 構造
- S造
- 階層
- 2階
- 駐車場
- 有
- 設備
- ■1階187.86坪/2階99.57坪、1棟貸し ■現況:食品加工工場
- 備考
- ■償却:1ヶ月 ■保証会社加入必須 ■火災保険加入必須 ■契約期間:3年 ■EVなし
お電話でのお問い合わせも可能です。
お電話の際は、ページ上部にある記載の物件番号をお伝えいただくとスムーズです。