貸し倉庫検索サイト

LOGI PICK by 株式会社ASSORT

東京都昭島市緑町5丁目|貸し倉庫(一棟貸し)

物件番号:2884

物件情報

所在地
東京都昭島市緑町5丁目
空き状況
アクセス
■中央自動車道「八王子料金所」約6㎞ ■JR八高線「拝島」徒歩13分
賃貸/寄託
賃貸
賃料(月額)
1,155,000円
契約形態
普通賃貸借
敷金/保証金
3ヶ月
礼金
1ヶ月
使用開始日
即時
契約面積
125坪
敷地面積
167坪
床式
低床式
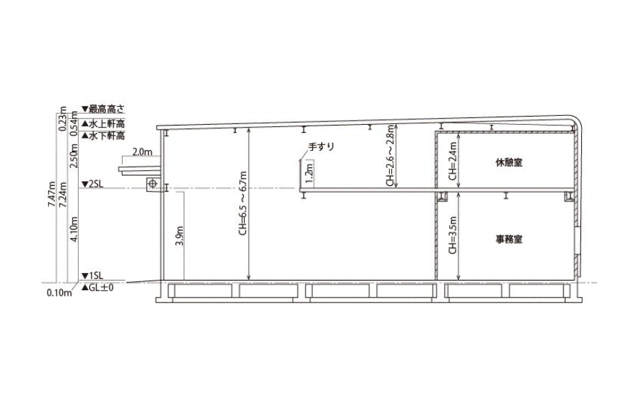
天井高
1階:3.5m~6.5m 2階:2.6m~2.8m 2階休憩室:2.4m
竣工
2007年
構造
S造
用途地域
1種住居
階層
2階
区画
1階-2階
駐車場
設備
■1階75.31坪/2階50.02坪、1棟貸し ■1階事務所、2階休憩室あり ■電気、上水道、トイレ ■エアコン(残置物) ■ヤード6台駐車可能 ■大型車両可(現地要確認)
備考
■賃貸保証:加入要 保証会社加入要 ■保険等加入:加入要/火災保険 ■契約期間:3年 ■近隣民家あり

お電話でのお問い合わせも可能です。

お電話の際は、ページ上部にある記載の物件番号をお伝えいただくとスムーズです。

LOGI PICK LOGO
copyright © 2023 LOGI PICK All Right Reserved.