
物件情報
- 所在地
- 埼玉県加須市南篠崎2丁目11-7
- 空き状況
- 使用中
- アクセス
- ■東北自動車道「加須IC」約1.3㎞ ■東武伊勢崎大師線「花崎」徒歩19分
- 賃貸/寄託
- 賃貸
- 賃料(月額)
- 2,430,728円
- 共益費/管理費(月額)
- 24,750円
- 契約形態
- 定期借家
- 敷金/保証金
- 4ヶ月
- 礼金
- 1ヶ月
- 使用開始日
- 2026年1月1日
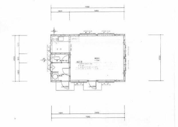
- 契約面積
- 614坪
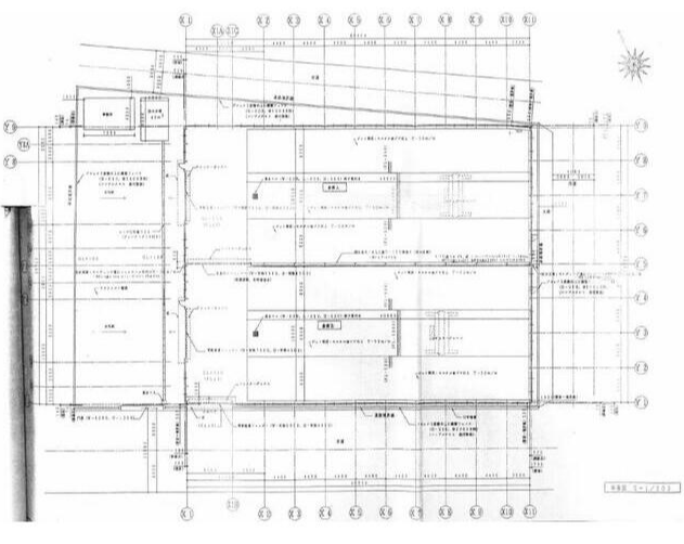
- 敷地面積
- 880坪
- 床式
- 低床式
- 竣工
- 1991年
- 構造
- S造
- 用途地域
- 1種住居
- 階層
- 1階
- 設備
- ■平屋建て倉庫603.80坪/事務所10.01坪 ■電気、水道、トイレ、空調、キッチン
- 備考
- ■償却:契約時1ヶ月 ■指定借家人賠償責任補償特約付火災保険要加入 ■指定賃貸保証制度要加入 ■指定工事業者あり ■契約期間:5年
お電話でのお問い合わせも可能です。
お電話の際は、ページ上部にある記載の物件番号をお伝えいただくとスムーズです。