
物件情報
- 所在地
- 埼玉県加須市不動岡3丁目25-4
- 空き状況
- 使用中
- アクセス
- ■東北自動車道「羽生IC」約5.4㎞ ■東武伊勢崎⼤師線「加須」徒歩29分
- 賃貸/寄託
- 賃貸
- 賃料(月額)
- 850,000円
- 契約形態
- 普通賃貸借
- 敷金/保証金
- 2ヶ月
- 礼金
- 1ヶ月
- 使用開始日
- 相談
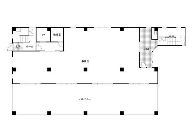
- 契約面積
- 336坪
- 竣工
- 1988年
- 構造
- S造
- 階層
- 3階
- 区画
- 1階-3階
- 駐車場
- 有
- 設備
- ■1階109.19坪/2-3階113.34坪、1棟貸し ■エアコン(残置物) ■EV任意で使用可(点検等借主負担) ■駐車場空き4台、別途駐車場10台(33,000円/月)
- 備考
- ■賃貸保証:加入要/保証料:賃料の100% 1年毎の更新時:月額賃料の10% 引落手数料:月額220円 ■契約期間:5年
お電話でのお問い合わせも可能です。
お電話の際は、ページ上部にある記載の物件番号をお伝えいただくとスムーズです。